Gå til: Plantegninger | Fasade | Kontaktskjema
216 – GODØ
STRAM OG STILFULL
Velkommen til Godø, en moderne bolig med funksjonelle løsninger for det aktive familielivet. Den stilrene fasaden, med en kombinasjon av stående kledning, fasadeplater og store vindusflater gir et eksklusivt uttrykk.
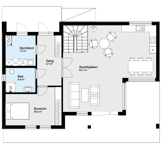
Boligen har et komfortabelt soverom, bad og sportsbod/vaskerom i første etasje, samt en åpen stue- og kjøkkenløsning med direkte utgang til en solrik terrasse. I andre etasje finner du tre soverom, et bad, en bod og en ekstra stue med utgang til altan.
Med smarte løsninger og tydelig soneinndeling gir Godø deg en bolig som balanserer hverdagens behov med moderne arkitektur og god bokvalitet.
TEKNISK DATA
ØNSKER DU MER INFORMASJON?
FYLL UT SKJEMAET, SÅ KONTAKTER VI DEG FOR EN HYGGELIG BOLIGPRAT
ARKITEKT
ALT KAN TILPASSES FOR Å IMØTEKOMME DERES ØNSKER OG BEHOV
Fordelene med å bygge et helt nytt hus, er at du kan få det akkurat slik som du vil. Trolig finner du en husmodell i vår katalog som kan passe, men kanskje ønsker du å tilpasse boligen etter egne ønsker og behov.
Vi vil gjøre vårt ytterste for at du skal bli fornøyd, og hjelper deg hele veien fra idé til ferdig bolig. Vi har fagkunnskap og gir gode råd for at du skal få bygget en bolig som passer deg helt perfekt.»








